Leiden University College The Hague
Den Haag
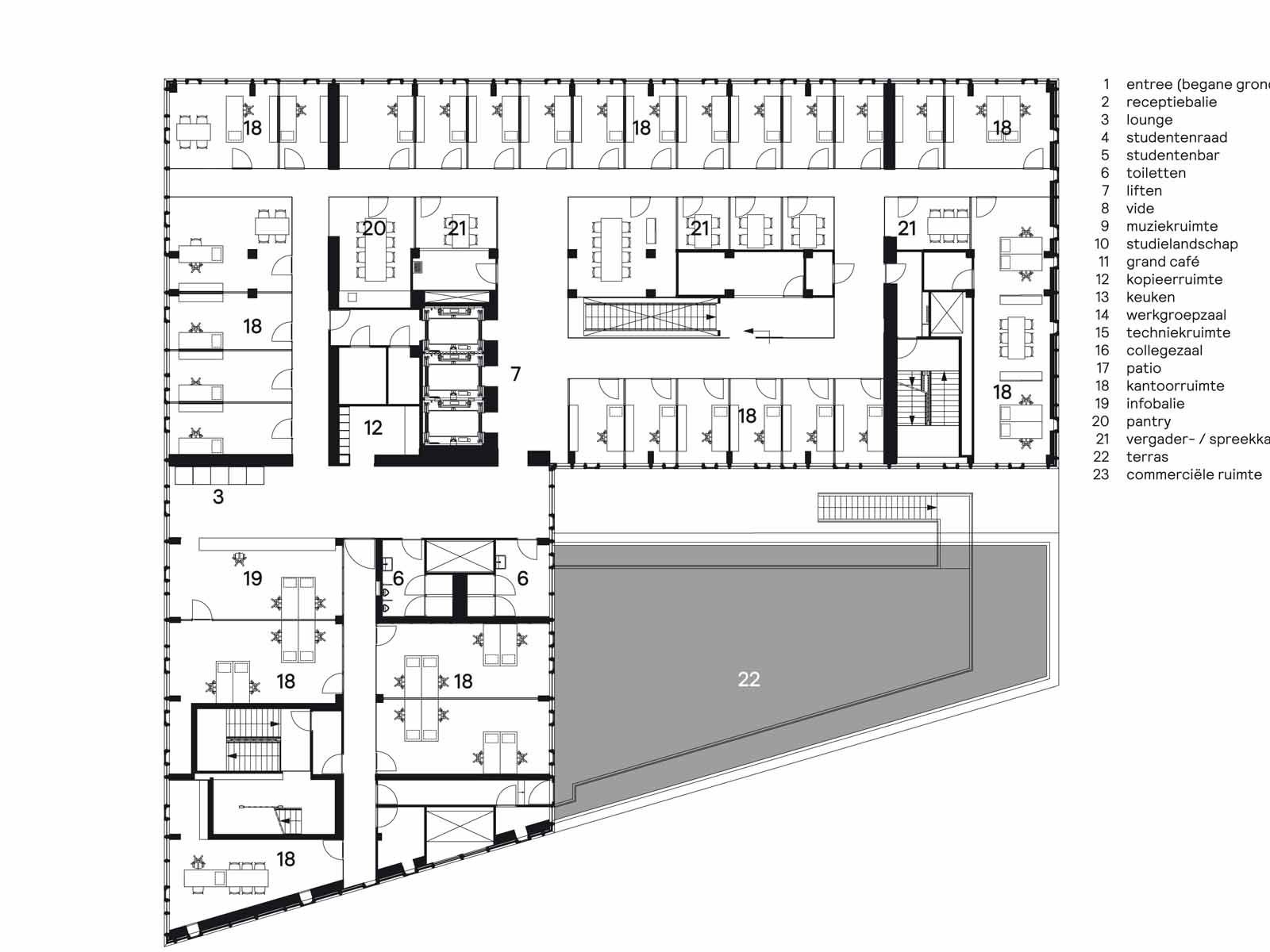
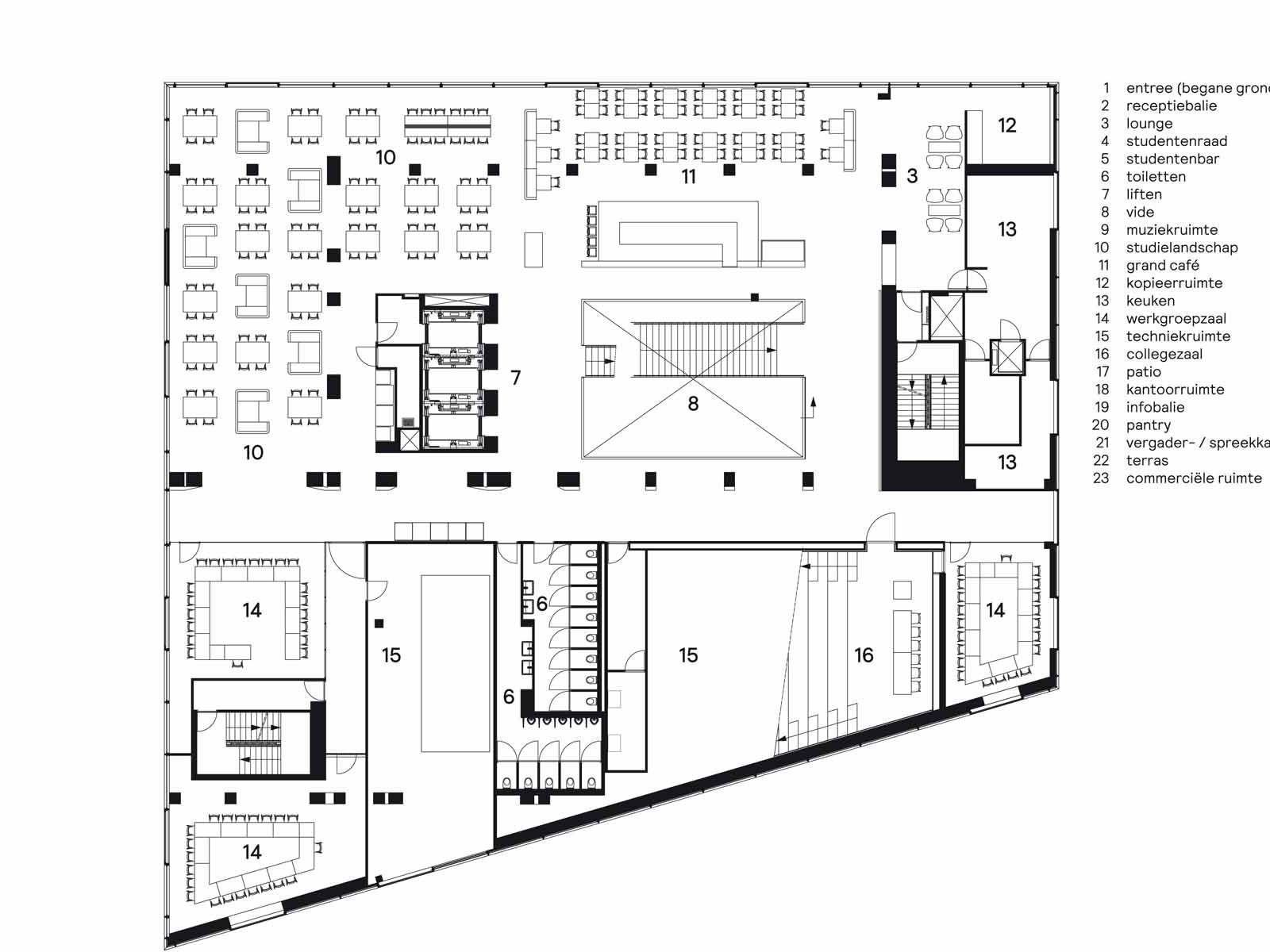
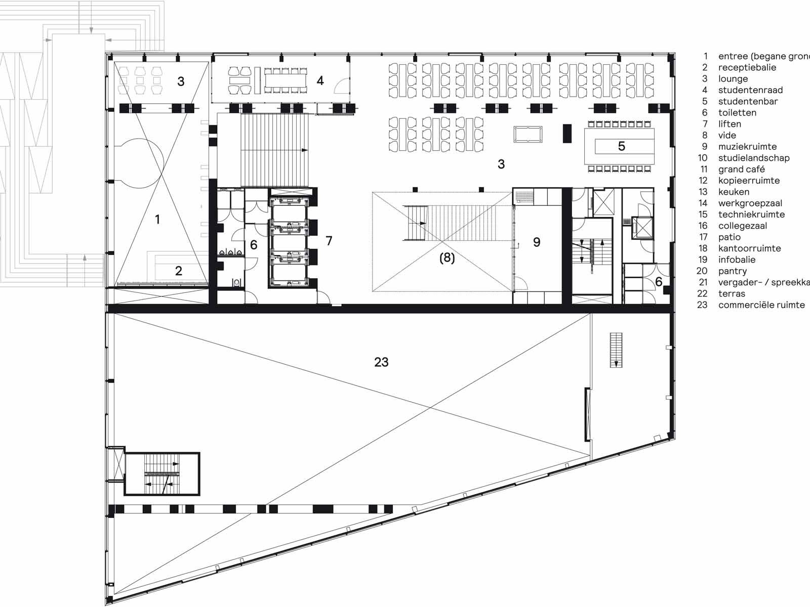
In opdracht van de Universiteit Leiden heeft STUDIO RTM het ontwerp gemaakt voor het interieur en het losse meubilair van het Leiden University College (LUC) The Hague. Wiel Arets Architects is verantwoordelijk voor het casco ontwerp. Het programma van ca. 4850m2 omvat onderwijs- en kantoorruimten met bespreek- en vergaderfaciliteiten, een auditorium, horeca- en studiefaciliteiten en ruimten voor ontspanning.
Het concept vindt zijn oorsprong in de drie pijlers van het onderwijsprogramma van het LUC: vrede, internationaal recht en duurzaamheid.
Vanuit het neutrale witte casco van Wiel Arets Architects worden er materiaalaccenten gelegd op vloeren, wanden, plafonds, meubels en verlichting. Door voor deze accenten te kiezen voor duurzame materialen wordt duurzaamheid zichtbaar en wordt een visuele en tactiele verbijzondering aan ruimtes meegegeven waardoor sterke, unieke ruimtes met een duidelijke identiteit worden gecreëerd.
Vanuit het gegeven dat het LUC verbonden wil zijn met de wereld, wordt het vaste interieur daarnaast als drager voor communicatie opgevat waardoor de samenhang binnen het gehele ontwerp verder wordt versterkt. Dit wordt bereikt door het specifiek bewerken van de verschillende materialen, door het toevoegen van unieke prints op stoffen en glas en door de integrale toepassing van steeds wisselende informatie in specifieke onderdelen van het interieur. Verder wordt groen als structureel element ingezet in de vorm van een verticale groenwand om zodoende CO2-concentratie en fijnstof te verminderen en de luchtvochtigheid de ruimte-akoestiek te optimaliseren.
Duurzaamheid is hiermee een leidend principe in het ontwerp.
Informatie
type: onderwijs
programma: onderwijsruimten, auditorium, grandcafé en kantoren
bvo: 4.850 m2
locatie: Den Haag
status: gerealiseerd juli 2013
ontwerp: Ewoud Netten, Bart Spee en Nanne Verbruggen
opdrachtgever: Universiteit Leiden | afdeling vastgoed
uitvoering: Wessels Zeist
fotografie: Dirk Vroemen



































