Tiny Revolver House
Almere
Het Tiny Revolver House is één van de prijswinnende ontwerpen van de prijsvraag Tiny Housing georganiseerd door de gemeente Almere.
Een Tiny House is een ander soort woning dan gebruikelijk omdat het uitgaat van een minimum aantal m2. De uitdaging van dit ontwerp is op een zo minimaal mogelijk oppervlakte een zo bijzonder mogelijke woning te realiseren.
De ruimtebesparing voor het Tiny Revolver House is met name gezocht in het op meerdere manieren gebruiken van dezelfde ruimte en het zo efficiënt mogelijk benutten van restruimte. Het roterende element bijvoorbeeld, is één ruimte die op drie verschillende manieren kan worden gebruikt. Dit verklaart ook de cilindrische vorm van de woning. Deze ruimte is ergonomisch specifiek voor de bovengenoemde activiteiten ontworpen en gemodelleerd.
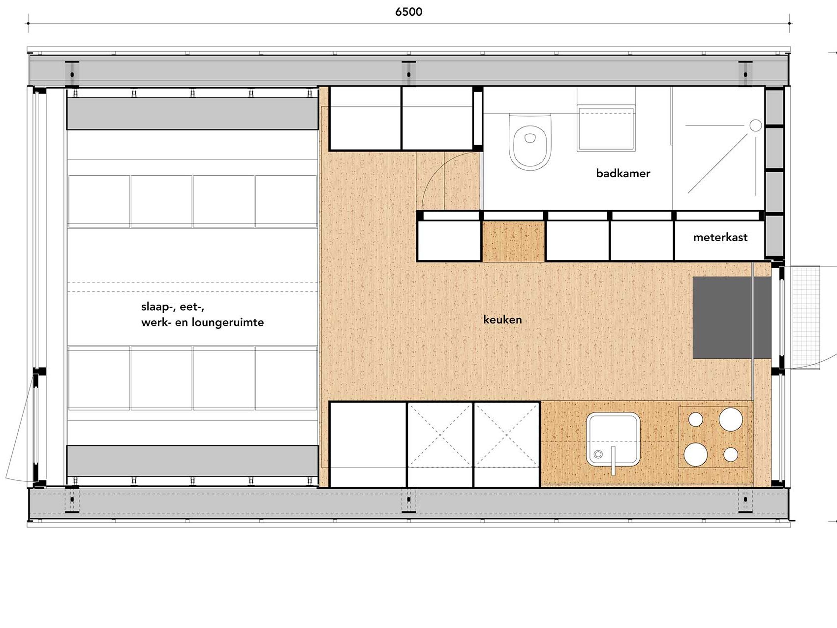
Het Tiny Revolver House is een cilindervormige woning bedoeld voor maximaal twee personen. De woning bestaat uit twee delen, een vast deel en een roterend deel.
In het vaste deel van de woning bevinden zich de keuken en het sanitaire gedeelte, bestaande uit een toilet, een douche en een wastafel. Het roterende deel van de woning wordt gevormd door een kamer die in drie verschillende standen drie verschillende functies kan faciliteren. De functies van eten, werken, relaxen en slapen vloeien letterlijk in elkaar over.
Stand 1 – Werken, zitten of eten
Voor deze activiteiten waarbij een tafel nodig is, wordt in deze stand een zitgelegenheid gecreëerd bestaande uit een tafel met 2 banken, waar maximaal 4 mensen aan kunnen zitten.
Stand 2 – Relaxen, lezen of TV-kijken
In deze stand vormt het tafelblad het paneel waar een televisiebeeldscherm in is verwerkt.
Stand 3 – Slapen of rusten
In deze stand wordt een slaapgelegenheid gecreëerd voor maximaal 2 personen waarbij het matras met klittenband wordt bevestigd aan de bodem.
Tiny Revolver House is ontworpen naar aanleiding van de prijsvraag Tiny Housing uitgeschreven door de gemeente Almere.
Echter, vanwege de minimale afmetingen en de vorm voegt deze woning zich als vanzelfsprekend in elke locatie en kan deze overal ‘neergelegd’ worden in de stad of op het platteland, tijdelijk of permanent. Op de kleine, soms vergeten, stukken groen, de groene randen, de oevers van de rivier, ergens in het park of in de Hortus Botanicus.
Informatie
type: woningbouw
programma: wonen
bvo: 30 m2
locatie: Almere
status: winnende prijsvraaginzending april 2016
ontwerp: Ewoud Netten en Nanne Verbruggen
opdrachtgever: particulier
uitvoering: particulier
beeld: Xuver/studio RTM










